Ein Staffelgeschoss ist in der Regel ein zurückversetztes Geschoss, das auf dem Dach oder einer höheren Ebene eines Gebäudes angeordnet ist. Die Bauweise ermöglicht eine stufenweise Verkleinerung der Grundfläche und Höhe des Gebäudes.
(Quelle: https://www.juraforum.de/lexikon/staffelgeschoss)
Im B-Plan Nr. 10 „Kammgarnspinnerei“ steht im Abschnitt „Textfestsetzungen Teil B der Satzung“ unter Punkt 7:
Zusätzlich zu den festgelegten Vollgeschossen ist der Ausbau des Dachgeschosses als Vollgeschoß möglich. Der Ausbau des Dachgeschosses als Staffelgeschoss ist nicht zulässig.
Weiterhin ist für diesen Bereich lt. B-Plan zwingend eine zweigeschossige Wohnbebauung vorgeschrieben.
Somit beträgt die zulässige Bebauung minimal zwei (Voll)Geschosse ohne Dachgeschoss und maximal zwei (Voll)Geschosse mit einem Dachgeschoss.
Nach den vorliegenden Informationen 1) und 2) baut die SWG sowohl dreigeschossig, als auch Staffelgeschosse.
Mehrfache Anfragen 3) zu den Geschossarten (Vollgeschosse / Staffelgeschosse) wurden vom Fachdienst „Bauordnung und Untere Denkmalschutzbehörde“ (Herr Strathmann) und auch vom Leiter des übergeordneten „Fachbereich 3“ (Herr Ihling) nicht beantwortet.
Dokumente / Nachweise
1)
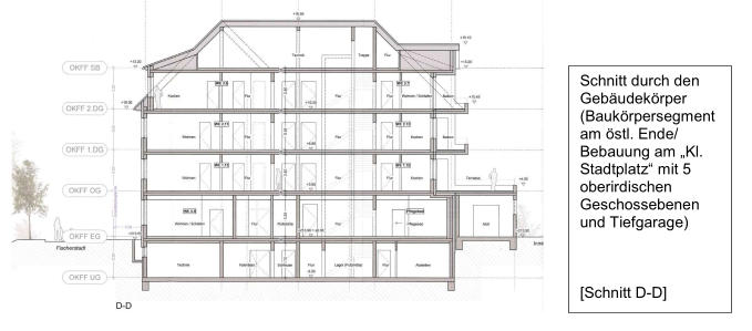
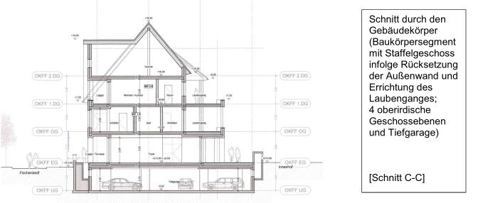
Im Bauantrag mit ablehnender „bauplanungsrechtlichen Stellungnahme“ des Stadtplanungsamtes vom 20.01.2021 und der aktuell am Bauzaun befindlichen Ansicht sind deutlich 3 Vollgeschosse (Schnitt D-D) und ein Staffelgeschoss (Schnitt C-C) zu erkennen.


Quellen: Anlage 8.1, Bauantrag vom 25.11.2020
Dieses Originaldokument vom 20.01.2021 können sie hier einsehen.

2)
In der Anlage 9 des Bauantrages wird sogar explizit aufgezeigt, dass man Staffelgeschosse errichten wird.

Quelle: Anlage 9, Bauantrag vom 25.11.2022
Dieses Originaldokument vom 20.01.2021 können sie hier einsehen.
3)
Erinnerungsmail vom 15.12.2025 zu der eMail vom 10.12.2024 mit den Anfragen zu den geplanten / zu bauenden Vollgeschossen.
Dieses Originaldokument vom 15.12.2024 können Sie hier einsehen.
veröffentlicht am: 01.04.2025